Vacation Home Expansion
Kitchen & Mud Room addition in Harpswell, ME


Garage & ADU Addition
2 Story addition in South Portland, ME


Lake Home Addition & Renovation
Kitchen addition and Living Room/Dining Room renovation in Raymond, ME
“He is really good at what he does, responsive, professional, competent, reasonable priced, especially if you factor in his talent. ” Deen H.




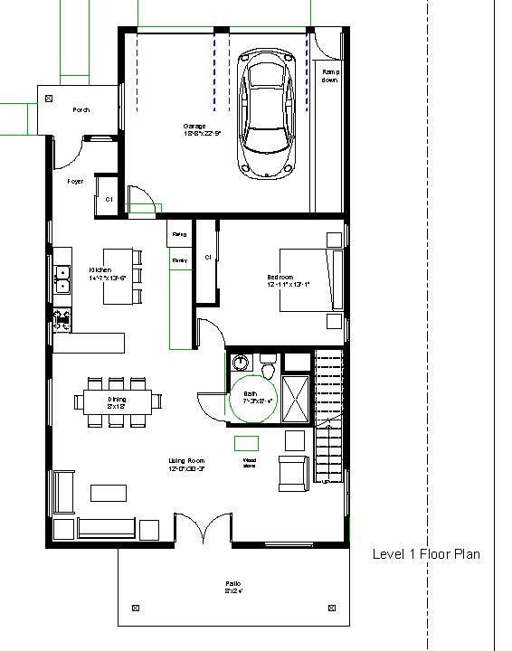
House in a City Neighborhood
New home in Portland, ME
“I am so glad I chose Chris to work with. His work is thorough and thoughtful. He answered all of my questions and made this project a breeze.” Rated 5 out of 5. Jonathan F.


Church Addition & Renovation
2750 square foot addition & renovation project in Lewiston, ME
“Chris has been responsive all the time that we needed him. Good person and trustworthy.” Rated 5 out of 5. Pastor Eddy K.

