Pyzik Residence
2000 square foot new residence in South Portland, ME



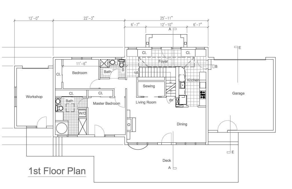
Littlefield Residence
1800 square foot new residence in Wells, ME
“Chris is very easy to work with and answered all our questions. His fees are very reasonable. Rated 5 stars out of 5.” Bob Littlefield



Hayden Residence
Four Season Room Addition & Family Room renovation in Cumberland, ME




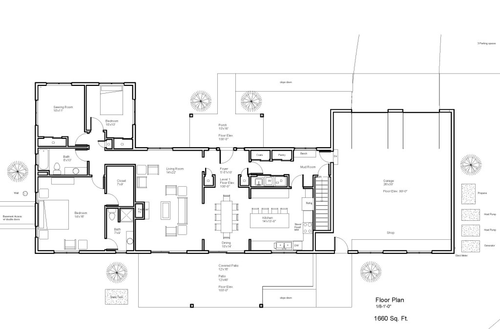
Leja-Sattler Residence
New 3000 square foot residence in Richland, MI.
“The Pro designed the house. The Architect designed everything. He took the time for questions and looked into our ideas. The architect’s ideas were very good and he was easy to talk to. Rated 5 stars out of 5.” Jim Leja



Buszka-Hoehn Residence
Construction drawings for new residence designed by owner in Fennvile, MI
“Chris meticulously captures a client vision and delivers multiple flexible solutions. This
meant for our residential project that we could give him a direction and he would build
upon it and make it work. We really like how he built the process to be collaborative when we wanted and hands off when we wanted his expertise. We are excited to build! Rated 5 stars out of 5.” Tim Buszka

