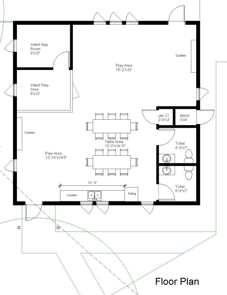
New Child Care Center
New facility for 20 children in Freeport, ME


Northside Association for Community Development- Future Technology Education Center
Expansion & upgrades to an educational and vocational training facility for a non-profit organization in Kalamazoo, MI.
“Excellent. Came on site, designed a building and came back multiple times. He was very low key. He was willing to coming back to the site and provoke low market prices. He listens to the customers. He provides options for the customer. Rated 5 stars out of 5.” Mattie Jordan-Woods, Executive Director


Northside Association for Community Development- Future Nutrition Education Center
Renovation & additions to existing facility for nutrition education and restaurant vocational training in Kalamazoo, MI.

